- Главная
- Проекты и цены
- Каркасные дома
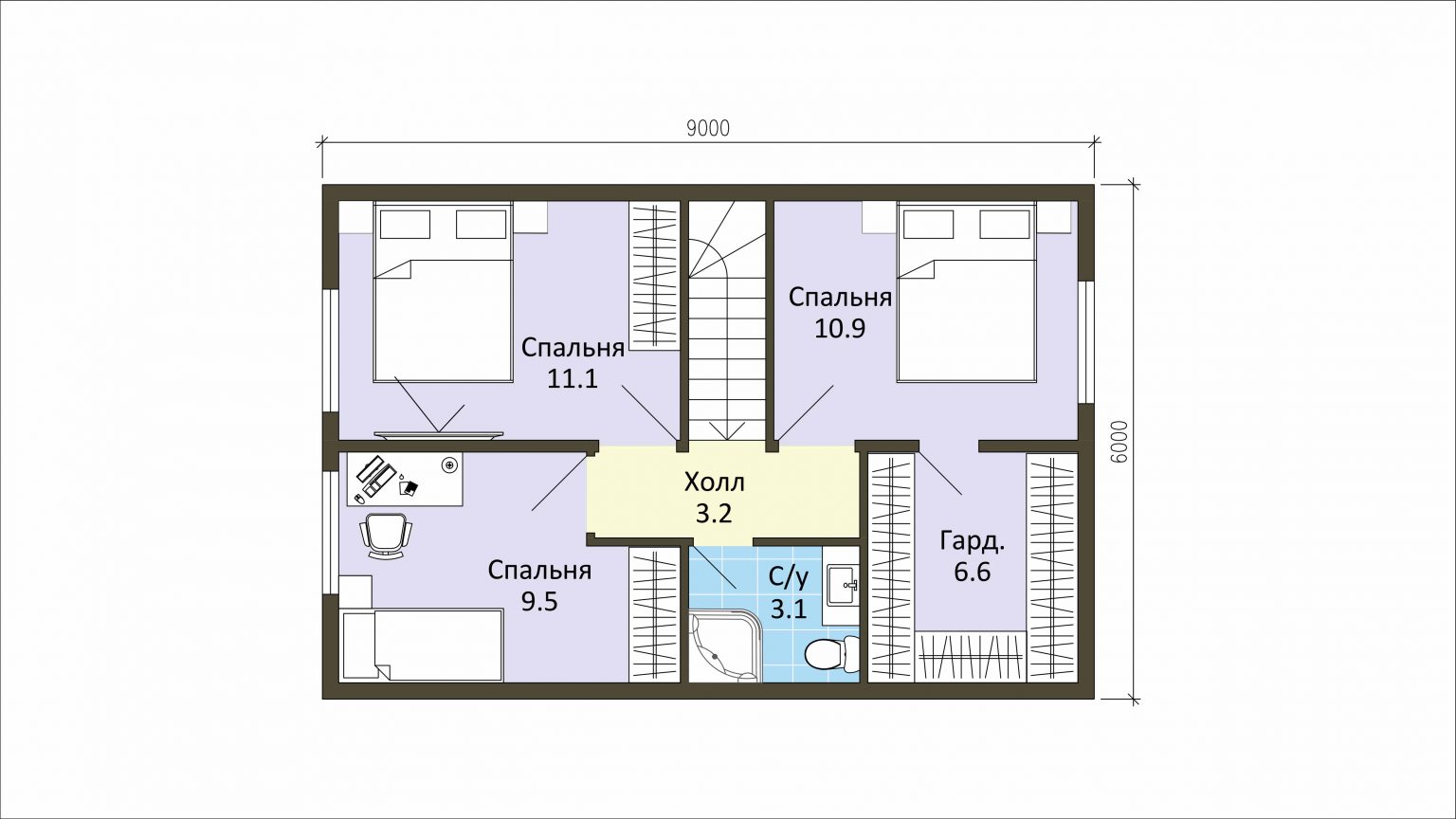
- Каркасный дом Боярин 6x9
Каркасный дом Боярин 6x9
в комплектации "Комфорт"
Описание пока не задано. Мы работаем над этим.
(для комп. СНИП)
-
ФундаментВинтовые сваи 108 х 2500 х 300 мм, внутреннее заполнение пескобетонной смесью.Обвязка фундаментаБалка наборная т.180х140 мм из калиброванной доски 45х140 мм, пропитана антисептикомНаружные стеныТолщиной 167 ммВерхняя и нижняя обвязка каркасаКалиброванная доска 140х35 ммСтойки каркасаКалиброванная доска 140х35 мм. Комплект конструктива каркасного дома изготавливается в заводских условиях. Для усиления конструктива каркаса и равномерного распределения нагрузок, применяются сдвоенные стойки, а так же ригели над оконными и дверными проемами.Утепление внешних стен и перегородокБиостойкие, экологически безопасные минераловатные утеплители, т. 150 мм.ДополнительноПри монтаже утеплителя используется паро- и ветрозащитные пленки. На стенах, потолках и перекрытиях установлены пароизоляционные пленки до 150 мк (+/-10%) с проклейкой скотчем Ondutiss Fix Tape.Наружная отделкаВ ПОДАРОК: замена наружной отделки из вагонки 12,5х88 мм (+/- 2 мм) на широкую вагонку 12,5х110 (+/- 2 мм) мм.Внутренняя отделка стен и перегородокГипсокартон по обрешетке из доски.Отделка потолковГипсокартон по обрешетке из доски.Верхняя и нижняя обвязка каркасаКалиброванная доска 95х35 ммЛагиКалиброванная доска 140х45 мм с шагом между лагами 418 мм.Черновой полСплошной настил из доски обрезной толщиной 20-22 мм.Утепление полаБиостойкие, экологически безопасные минераловатные утеплители. Толщина 150 мм.Антисептическая обработкаЛага и доски чернового пола обрабатываются антисептическим составом в заводских условиях.Чистовой полНастил ОСП т. 22 ммПерекрытия 1-го этажаБалки из калиброванной доски 140х45 мм с шагом между балками 418 мм.УтеплениеБиостойкие, экологически безопасные минераловатные утеплители, т. 100 ммПол 2-го этажаНастил сплошной ОСП т. 22 ммПерекрытия 2-го этажаКалиброванная доска 145 х 35 мм, Утепление - биостойкие, экологически безопасные минераловатные утеплители, т. 200 ммСтропильная частьКалиброванная доска 140х35 мм, утепление 150 ммОбрешеткаРазреженная из доски обрезной 20-22 ммПокрытиеВ ПОДАРОК лист с полимерным покрытием, профиль Монтерей.Подбой кровлиНаличник с зазором для вентиляцииСтеклопакетыПВХ двухкамерныеОтливыБелыеПодоконникиПВХ, белыеВходная дверьМеталлическая с замком В ПОДАРОК.Межкомнатные двериНе устанавливаютсяМежэтажнаяИз строганной доски, согласно проекту, комплектуется ограждением из строганной доски.Терраса или крыльцоЕсли предусмотрено проектом - столбы клееный брус, ограждение из горизонтальной строганной доски, настил - палубная доска.Настил полаИз доски "палубной" без шпунта, монтируется с зазором.Высота 1-го этажаНе менее 2500 мм (в зависимости от проекта, указана в Паспорте дома)Высота 2-го этажаНе менее 2400 мм (в зависимости от проекта, указана в Паспорте дома)
-
Можно заказать дополнительно к этой комплектацииВодоснабжение, электропроводку, отопительную систему.
-
ФундаментВинтовые сваи 108 х 2500 х 300 мм, внутреннее заполнение пескобетонной смесью.Обвязка фундаментаБалка наборная т.180х140 мм из калиброванной доски 45х140 мм, пропитана антисептикомНаружные стеныТолщиной 250 ммВерхняя и нижняя обвязка каркасаКалиброванная доска 140х35 мм. Комплект конструктива каркасного дома изготавливается в заводских условиях. Для усиления конструктива каркаса и равномерного распределения нагрузок, применяются сдвоенные стойки, а так же ригели над оконными и дверными проемами.Утепление внешних стен и перегородокБиостойкий, экологически безопасный минеральный утеплитель. Утепление наружных стен т.200 мм. При монтаже утеплителя стен применяется контур перекрестного утепления.ДополнительноПри монтаже утеплителя используется паро- и ветрозащитные пленки. На стенах, потолках и перекрытиях установлены пароизоляционные пленки до 150 мк (+/-10%) с проклейкой скотчем Ondutiss Fix Tape.Наружная отделкаИмитация бруса т.16х140 мм(+/-5)Внутренняя отделка стен и перегородокГипсокартон по обрешеткеОтделка потолковГипсокартон по обрешеткеВерхняя и нижняя обвязка каркасаКалиброванная доска 95х35 ммЛагиКалиброванная доска 190х45 мм с шагом между лагами 417 ммЧерновой полСплошной настил из доски обрезной толщиной 20-22 мм.Утепление полаБиостойкие, экологически безопасные минераловатные утеплители. Толщина 200 мм.Антисептическая обработкаЛага и доски чернового пола обрабатываются антисептическим составом в заводских условиях.Чистовой полНастил ОСП т. 22 ммПерекрытия 1-го этажаБалки из калиброванной доски 190х45 мм с шагом между балками 417 мм.УтеплениеБиостойкие, экологически безопасные минераловатные утеплители, т. 100 ммПол 2-го этажаНастил сплошной ОСП т. 22 ммПерекрытия 2-го этажаКалиброванная доска 195 х 35 мм, Утепление - биостойкие, экологически безопасные минеральные утеплители, т. 200 ммСтропильная частьКалиброванная доска 140х35 мм, утепление 150 ммОбрешеткаРазреженная из доски обрезной 20-22 ммПокрытиеВ ПОДАРОК лист с полимерным покрытием, профиль Монтерей.СтеклопакетыПВХ двухкамерныеОтливыБелыеПодоконникиПВХ, белыеВходная дверьМеталлическая с замком В ПОДАРОК.Межкомнатные двериНе устанавливаются.МежэтажнаяИз чистовая, из клееного материала, согласно проекту, комплектуется ограждением из строганной доски.Терраса или крыльцоЕсли предусмотрено проектом - столбы клееный брус, ограждение из горизонтальной строганной доски, настил - палубная доска.Настил полаИз доски "палубной" без шпунта, монтируется с зазором.Лестница входаИз строганного пиломатериала с балясинами и поручнем. Настил пола из доски "палубной" без шпунта, монтируется с зазором.Высота 1-го этажаНе менее 2500 мм (в зависимости от проекта, указана в Паспорте дома)Высота 2-го этажаНе менее 2400 мм (в зависимости от проекта, указана в Паспорте дома)
-
Можно заказать дополнительно к этой комплектацииВодоснабжение, электропроводку, отопительную систему.
-
ФундаментВинтовые сваи 108 х 2500 х 300 мм, внутреннее заполнение пескобетонной смесьюОбвязка фундаментаБалка наборная т.180х140 мм из калиброванной доски 45х140 мм, пропитана антисептикомНаружные стеныТолщиной 250 ммВерхняя и нижняя обвязка каркасаКалиброванная доска 140х35 мм. Комплект конструктива каркасного дома изготавливается в заводских условиях. Для усиления конструктива каркаса и равномерного распределения нагрузок, применяются сдвоенные стойки, а так же ригели над оконными и дверными проемами.Утепление внешних стен и перегородокБиостойкий, экологически безопасный минеральный утеплитель Knauf. Утепление наружных стен т.200 мм. При монтаже утеплителя стен применяется контур перекрестного утепления. Перегородки утеплены т.100мм.ДополнительноПри монтаже утеплителя используется паро- и ветрозащитные пленки. На стенах, потолках и перекрытиях установлены пароизоляционные пленки до 200 мк (+/-10%) с проклейкой скотчем Ondutiss Fix Tape.Наружная отделкаВ ПОДАРОК наружная отделка на выбор панелями сайдинга Doсke «корабельный брус» или фасадная плитка Хауберг, монтаж отделки по ОСП плите т.9 мм.Внутренняя отделка стен и перегородокВагонка т.88х12,5 мм (+/- 2 мм)Отделка потолковВагонка т.88х12,5 мм (+/2 мм)ПерегородкиВерхняя и нижняя обвязка каркаса - калиброванная доска 95х35 ммПромежуточные стойкиКалиброванная доска 95х35 с шагом 590 ммПолыЛаги - калиброванная доска 190х45 мм с шагом между лагами 417 ммЧерновой полСплошной настил из доски обрезной толщиной 20-22 мм.Утепление полаБиостойкие, экологически безопасные утеплители. Толщина 200 мм.Антисептическая обработкаЛага и доски чернового пола обрабатываются антисептическим составом в заводских условиях.Чистовой полНастил ОСП т. 22 ммПерекрытия1-го этажа - балки из калиброванной доски 190х45 мм с шагом между балками 417 мм.УтеплениеБиостойкие, экологически безопасные утеплители, т. 100 ммПол 2-го этажаНастил сплошной ОСП т. 22 ммПерекрытия 2-го этажаКалиброванная доска 195 х 35 мм, Утепление - биостойкие, экологически безопасные минеральные утеплители, т. 200 ммСтропильная частьКалиброванная доска 140х35 мм.ОбрешеткаРазреженная из доски обрезной 20-22 ммПокрытие кровлиЛист профилированный с полимерным покрытием, профиль МонтеррейПодбой кровлиПодшивается - белыми, частично перфорированными софитами.Оконные блокиСтеклопакеты ПВХ двухкамерныеОтливы под окнамиБелыеПодоконникиПВХ, белыеВходная дверьМеталлическая с замком В ПОДАРОК.Межкомнатные двериФиленчатыеЛестница межэтажнаяЧистовая, из клееного материала, согласно проекту, комплектуется ограждением из строганной доски.Терраса или крыльцоЕсли предусмотрено проектом - столбы клееный брус, ограждение из горизонтальной строганной доски, настил - палубная доска.Лестница входаИз строганного пиломатериала с балясинами и поручнем. Настил пола из доски "палубной" без шпунта, монтируется с зазором.Высота 1-го этажаНе менее 2500 мм (в зависимости от проекта, указана в Паспорте дома)Высота 2-го этажаНе менее 2400 мм (в зависимости от проекта, указана в Паспорте дома)
-
Можно заказать дополнительно к этой комплектацииВодоснабжение, электропроводку, отопительную систему.
-
Фундаментжелезобетонные сваи 3м (ниже глубины промерзания) с обвязкой из балки составного сечения 135х190 мм . Цоколь фундамента отделан декоративными панелями Royal StoneНаружные стенытолщиной 300 ммВерхняя и нижняя обвязка каркасаКалиброванная доска 190х45 ммСтойки каркасаКалиброванная доска 190х45 мм. Комплект конструктива каркасного дома изготавливается в заводских условиях. Для усиления конструктива каркаса и равномерного распределения нагрузок, применяются сдвоенные стойки, а так же ригели над оконными и дверными проемами.Утепление внешних стен и перегородокБиостойкий, экологически безопасный утеплитель Юматекс. Утепление наружных стен т. 200 мм. Пароизоляция - Finka 200 мк (или аналоги) с проклейкой швов скотчем Delta (или аналоги)и ветрозащита супер диффузионная мембрана Ютавек 85 (или аналоги).
ДополнительноВ ПОДАРОК утепление монтируется с применением контура перекрестного утепления.Наружная отделкаФасадная плитка Хауберг по ОСП плите т.9мм.Внутренняя отделка стен и перегородокИмитация бруса 16х132 мм (+/- 1 мм), под внутреннюю отделку стен, потолков, пола монтируется вентиляционный брусок.
Отделка потолковИмитация бруса 16х132 мм (+/- 1 мм).ПерегородкиВерхняя и нижняя обвязка каркаса - калиброванная доска 95х45 мм.Промежуточные стойкиКалиброванная доска 95х45 с шагом 590 мм.ПолыЛаги - калиброванная доска 190х45 мм с шагом между лагами 300 мм.Черновой полСплошной настил из доски обрезной толщиной 20-22 мм.Утепление полаБиостойкие, экологически безопасные минеральные плиты Юматекс т. 250 мм, с применением контура перекрестного утепления. Пароизоляция - Finka 200 мк (или аналоги) с проклейкой швов скотчем Delta (или аналоги)и ветрозащита супер диффузионная мембрана Ютавек 85 (или аналоги).Антисептическая обработкаЛага и доски чернового пола обрабатываются антисептическим составом в заводских условиях.Чистовой полНастил пола – ЦСП т.20 мм. Чистовой настил пола – ламинат 33 класса с плинтусом ПВХ по подложке т.2мм. В полах 1 эт. устанавливается мелкоячеистая сетка от грызуновПерекрытия 1-го этажаБалки из калиброванной доски 140х45 мм с шагом между балками 418 мм.УтеплениеМежэтажное 200 ммПол 2-го этажаНастил сплошной ОСП толщиной 22 мм. Чистовой настил пола – ламинат 33 класса с плинтусом ПВХ по подложке т.2мм.Перекрытия 2-го этажаКалиброванная доска 190 х 45 мм, утепление 200 мм.Стропильная частьКалиброванная доска 190х45 мм, утепление 200 ммОбрешеткаРазреженная из доски обрезной 20-22 ммПокрытие кровлиМеталочерепица 0,5 мм (цвет на выбор: бордовый, зеленый, коричневый, серый) с комплектующими (планка карнизная + планка конденсата), лента карнизная вентиляционная ПВХДополнительноснегозадержатели трубчатые, водосточная система ПВХ Grand LineПодбой кровлиБелые, частично перфорированные софитыОконные блокиСтеклопакеты ПВХ двухкамерные с москитными сетками.ОтливыПВХ, белыеПодоконникиПВХ, белыеВходная дверьМеталлическая с терморазрывом В ПОДАРОКМежкомнатные двериЭкошпон ламинированные.Лестница межэтажнаяЧистовая, на второй этаж, клееная, согласно проекту, комплектуется ограждением из балясин с поручнем.Терраса или крыльцоЕсли предусмотрено проектом - столбы клееный брус, ограждение из горизонтальной строганной доски.Настил полаИз доски "палубной" без шпунта, монтируется с зазором.Лестница входаИз строганного пиломатериала с балясинами и поручнем. Настил пола из доски "палубной" без шпунта, монтируется с зазором.Высота 1-го этажаНе менее 2500 мм (в зависимости от проекта, указана в Паспорте дома)Высота 2-го этажаНе менее 2400 мм (в зависимости от проекта, указана в Паспорте дома)В подарокБиотуалет для рабочих на весь срок строительства.
Проведение испытаний воздухопроницаемости ограждающих конструкций здания аэродверью.
-
Можно заказать дополнительно к этой комплектацииВодоснабжение, электропроводку, отопительную систему.
Отзыв на проект дома “Фортуна” 7х9
Отзыв на проект дома “Бавария” 8х12
Отзыв на дом Премьер размером 10,8х9,55
Отзыв на дом Сенатор 7,5х7,5
Отзыв на дом “Фаворит” 9,5х9
Фортуна: счастливый дом для счастливой семьи
Отзыв на дом Фортуна 6х12
Отзыв на дом Гранд 7,5×9!
Отзыв о каркасной бане 6×8 “Barn” от компании “Мастер”
Отзыв о каркасном доме 10×10 “Фаворит” от компании “Мастер”
Отзыв о каркасном доме “Премьер” от компании “Мастер”
Обзор дома из клееного бруса 11,2×8,2 по индивидуальному проекту
Обзор каркасного дома 7×8 в комплектации “Премиум”
Каркасный дом “Фаворит” 9,5х9 в комплектации “Комфорт”
Каркасно-щитовой дом “Ока” 6х6 в комплектации “Премиум”
Каркасный дом “Вельможа” 8х9,5 для Сергея и его супруги
Видеообзор индивидуального проекта 8х9 для круглогодичного проживания
Каркасный дом “Фаворит” 8х9 для Татьяны Болодуриной
Каркасный дом “Боярин-1” 7х8 для Алексея Белоусова
Каркасный дом “Фортуна” 8,5х9,5 для Андрея и его семьи
Каркасный дом “Премьер” 10,8х9,55 для Александры
Каркасный дом “Фортуна” 7х9 для Владимира Самарина
Каркасный дом по проекту “Фаворит” 9,5х9 для Михаила и Анны
Каркасный дом 10х10 для Игоря Борисовича
Оставьте заявку на консультацию с нашими специалистами. В течение 15 минут мы вам перезвоним, подробно расскажем об условиях покупки и ответим на все ваши вопросы.
Консультация БЕСПЛАТНАЯ и ни к чему вас не обязывает
Этот сайт использует cookie-файлы для улучшения работы и анализа трафика. Продолжая использовать сайт, вы даете согласие на их использование.
Нам 20 лет
А еще в подарок:
